Murowana Goślina 3 pok. 1 piętro

Mieszkanie na sprzedaż
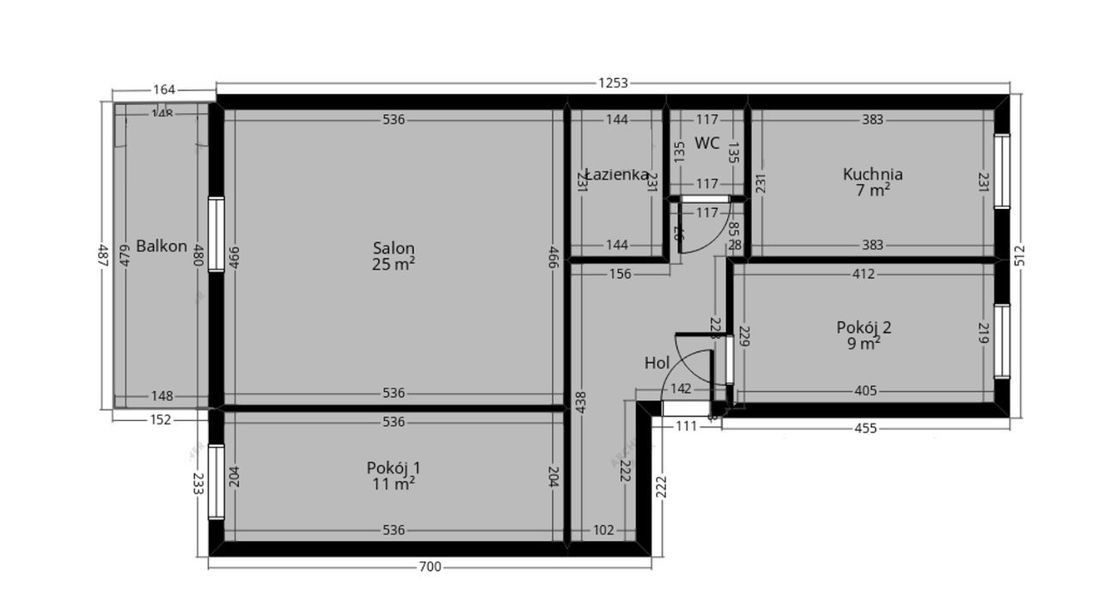
530 000,00 PLN , Pow. 61,50 m2
Drukuj ofertę
Drukuj ofertę
Typ nieruchomości:
Mieszkanie
Powierzchnia:
61,50 m2
Typ transakcji:
sprzedaż
Liczba pokoi:
3
Lokalizacja:
Murowana Goślina , Kręta
Piętro:
1 na 3
Numer oferty:
IR473567
Cena za m2:
8 617,89 PLN
Do zaoferowania mam duże przestronne i ustawne 3-pokojowe mieszkanie.
Lokalizacja: Zielone Wzgórza
Budynek ocieplony, czysta klatka schodowa, po wymianie instalacji.
Opis mieszkania: - całkowita powierzchnia
- duży salon z balkonem na całej długości,
- oddzielna łazienka i toaleta,
- piętro 1 w trzypiętrowym budynku,
- okna PCV,
- przynależna piwnica,
- instalacje w budynku po wymianie,
- budynek ocieplony,
- ekspozycja północ-południe
Stan b.dobry, do ewentualnego odświeżenia wg uznania.
W okolicy dużo sklepów Biedronka, Dino, trochę dalej Lidl, Netto, Pepco, Rossman i inne sklepy.
W pobliżu szkoła podstawowa, przedszkola, place zabaw.

Nieprawidłowy adres E-mail